Our Design Process
- Site visit from our in-house designer to outline your customer’s vision
- Brief with proposed 2D CAD drawings
- Samples and mood board provided to bring ideas to life
- Bespoke 3D visuals created FREE OF CHARGE
- Support from our experienced design team
2D Drawings
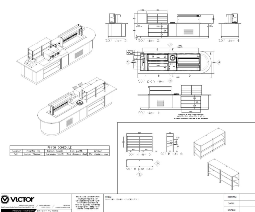
When it comes to getting the job right our 2D technical drawings enable you to visualise and confirm on-site service requirements.
Our scaled drawings are included as part of our standard contract offering at no obligation.
All drawings include:
- Electrical Services
- Full Dimensions
- Drainage
- Specification of Finishes
